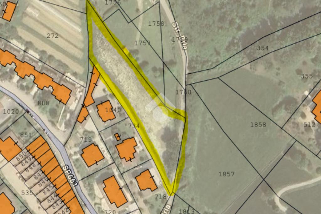
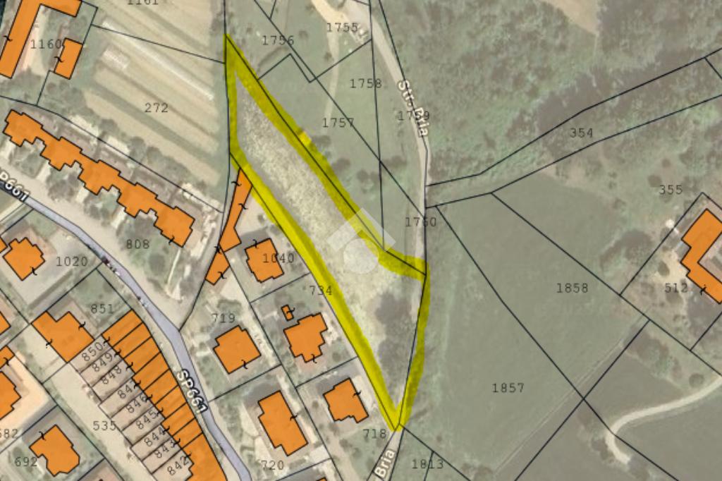
Ter. residenziale in vendita

Bra, Terreno Edificabile Strada Bria - Bandito
€ 168.000
Prezzo aggiornato
3200 Mq 3200 Mq

Ter. residenziale in vendita

Bra, Terreno Edificabile Strada Bria - Bandito

Descrizione annuncio

Proponiamo nei pressi di Viale Madonna Fiori terreno residenziale edificabile situato in una zona tranquilla e ben servita, ideale per la costruzione della tua casa.

Il lotto, di ampie dimensioni che si estende per circa 3200 mq, offre una vista panoramica e una posizione strategica, situato a pochi minuti dai servizi essenziali.

Ottima opportunità per chi cerca spazio e tranquillità.

Mostra tutto

Nelle vicinanze

Trasporto pubblico Trasporto pubblico
Bra
Bra
2,4 Km
Bra (stazione FS)
Bra (stazione FS)
2,3 Km
Bra (Gulliver)
Bra (Gulliver)
2,8 Km
Bandito
Bandito
1,7 Km
Ricariche auto elettriche Ricariche auto elettriche
Stazione di Bra | ENELX
2,3 Km
Scuole Scuole
Scuole
600 m
Scuola Media "Carlo Alberto Dalla Chiesa
1,3 Km
Istituto San Giuseppe
1,7 Km
Istituto d'Istruzione Superiore "Velso Mucci"
1,8 Km
Liceo G. Gandino
2,1 Km
Farmacia Farmacia
Parafarmacia Marchisio
400 m
La Farmacia
970 m
Farmacia
1,2 Km
Farmacia Bainotti
1,4 Km
Farmacia Bianchi
1,9 Km
Ospedali Ospedali
Ospedale Santo Spirito
1,5 Km
ASL CN2 Consultorio Familiare CUP
1,5 Km
Casa di Cura Privata Città di Bra
2,5 Km
Supermercati Supermercati
Paniate
310 m
Sapore di Mare
630 m
La Casa del Senzaglutine S.n.c.
1,2 Km
In's Supermercati
1,3 Km
Mercatò Local
1,9 Km
Negozi Negozi
OVS
610 m
Panetteria Fagnola
1,1 Km
Pasticceria Zucchero e Fantasia
1,4 Km
Rosso Dario
1,6 Km
Panificio Songia
1,8 Km
Bar Bar
Gelati Dolcevia
460 m
Bar
780 m
White Break Coffee Bar
780 m
Dicaf
960 m
Bar del Viale
1,0 Km
Ristoranti Ristoranti
Self-Service Gusto Giusto
450 m
Haru Hana
620 m
L'Isola Che C'è
630 m
Pizzeria dei Fiori
680 m
Pizzeria Pipote
970 m
Mostra tutto

Caratteristiche

Rif.:
60894584
Piano:
Terra
Arredamento:
Assente
Condizionamento:
Assente
Ascensore:
No
Riscaldamento:
Autonomo
Mostra tutto
Prezzo Prezzo
€ 168.000
Rata mutuo Rata mutuo
€ 793 / mese
Spese annue Spese annue
€ 0
Proponi il tuo prezzoProponi il tuo prezzo

Classe Energetica

G
G
G
G
G
G
G
G
G
EP globale non rinnovabile:
0.00 kW h/m² anno
EP globale rinnovabile:
0.00 kW h/m² anno
Anno di costruzione:
2000
Riscaldamento:
Autonomo
Tipo impianto:
A radiatori
Tipo alimentazione:
Metano

Prezzo ridotto di €1 (16%%)

Ti interessa visionare l'immobile?

Fissa un appuntamento  Fissa un appuntamento

Richiedi informazioni

Clicca su Leggi per aprire l'informativa
* Questi campi sono obbligatori

Calcola il tuo mutuo

Semplice e senza impegno
Anticipo

( % )
Mutuo

( % )

pochi semplici passi

inserisci i tuoi dati
Questionario completato
Grazie per aver richiesto un appuntamento senza impegno con un nostro Consulente del Credito e Assicurativo.

Hai inserito correttamente tutti i dati necessari e a breve riceverai una e-mail con un link da convalidare per inviare i tuoi dati.
Affiliato
Studio Vittorio D.I.
Via Vittorio Emanuele II, 107 12042 Bra (CN)

Il nostro staff


  • Andrea Veglio
    Affiliato

  • Elena Bertolusso
    Collaboratrice

  • Andrea Giordanino
    Responsabile

  • Sonia Mollo
    Coordinatrice
Via Vittorio Emanuele II, 107 12042 Bra (CN)
Zona: Bra-Madonna Dei Fiori-San Michele-San Matteo-Bandito
Mostra su mappa
Orari: Dal lunedì al venerdì 9-12.30 e 15-20. Sabato 9-12.30 e 15-19.
Affiliato
Studio Vittorio D.I.
Via Vittorio Emanuele II, 107 12042 Bra (CN)

2025 Tecnocasa Franchising S.p.A. - P. IVA 08365160152 - Via Monte Bianco 60/A 20089 Rozzano (MI). Ogni agenzia ha un proprio titolare ed è autonoma. Privacy policy | Policy utilizzo | Cookie policy