Casa semindipendente in vendita

Bra, Frazione Boschetto - Falchetto
€ 55.000
6 locali 6 locali
600 Mq 600 Mq

Casa semindipendente in vendita

Bra, Frazione Boschetto - Falchetto

Descrizione annuncio

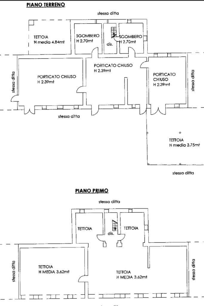
Proponiamo a Boschetto, frazione di Bra, rustico completamente da ristrutturare.

La soluzione, attualmente cascinale, presenta 600 mq di superficie edificata.

Vi è inoltre presente una tettoia nella parte di cortile antistante l’immobile.

Il verde privato si sviluppa nella parte frontale e nel retro della cascina ed ognuno dei due appezzamenti è di circa 2.000 mq.

Mostra tutto

Nelle vicinanze

Trasporto pubblico Trasporto pubblico
Madonna Del Pilone
Madonna Del Pilone
2,0 Km
Mostra tutto

Caratteristiche

Rif.:
40451601
Piano:
2 di 2 con ascensore (Piano terra con giardino)
Arredamento:
Assente
Condizionamento:
Assente
Ascensore:
Riscaldamento:
Autonomo
Mostra tutto
Prezzo Prezzo
€ 55.000
Rata mutuo Rata mutuo
€ 259 / mese
Spese annue Spese annue
€ 0
Proponi il tuo prezzoProponi il tuo prezzo
Immobile valutato con T·Valuta

Classe Energetica

G
G
G
G
G
G
G
G
G
EP globale non rinnovabile:
0.00 kW h/m² anno
EP globale rinnovabile:
0.00 kW h/m² anno
EP invernale del fabbricato:
EP estiva del fabbricato:
Anno di costruzione:
1950
Riscaldamento:
Autonomo
Tipo impianto:
A radiatori
Tipo alimentazione:
Metano

Ti interessa visionare l'immobile?

Fissa un appuntamento  Fissa un appuntamento

Richiedi informazioni

Clicca su Leggi per aprire l'informativa
* Questi campi sono obbligatori

Calcola il tuo mutuo

Semplice e senza impegno
Anticipo

( % )
Mutuo

( % )

pochi semplici passi

inserisci i tuoi dati
Questionario completato
Grazie per aver richiesto un appuntamento senza impegno con un nostro Consulente del Credito e Assicurativo.

Hai inserito correttamente tutti i dati necessari e a breve riceverai una e-mail con un link da convalidare per inviare i tuoi dati.
Affiliato
Studio Vittorio D.I.
Via Vittorio Emanuele II, 107 12042 Bra (CN)

Il nostro staff


  • Andrea Veglio
    Affiliato

  • Elena Bertolusso
    Collaboratrice

  • Andrea Giordanino
    Responsabile

  • Sonia Mollo
    Coordinatrice
Via Vittorio Emanuele II, 107 12042 Bra (CN)
Zona: Bra-Madonna Dei Fiori-San Michele-San Matteo-Bandito
Mostra su mappa
Orari: Dal lunedì al venerdì 9-12.30 e 15-20. Sabato 9-12.30 e 15-19.
Affiliato
Studio Vittorio D.I.
Via Vittorio Emanuele II, 107 12042 Bra (CN)

2025 Tecnocasa Franchising S.p.A. - P. IVA 08365160152 - Via Monte Bianco 60/A 20089 Rozzano (MI). Ogni agenzia ha un proprio titolare ed è autonoma. Privacy policy | Policy utilizzo | Cookie policy