Quadrilocale in vendita

Bra, Via Vincenzo Gioberti
€ 100.000
4 locali 4 locali
110 Mq 110 Mq
1 bagno 1 bagno

Quadrilocale in vendita

Bra, Via Vincenzo Gioberti

Descrizione annuncio

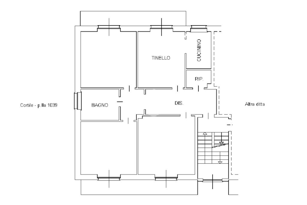
In una tranquilla palazzina di poche unità abitative, senza ascensore, proponiamo in vendita un appartamento di quattro locali situato al primo piano. L’immobile, parzialmente ristrutturato, si distingue per la sua ottima luminosità e per gli spazi ampi e ben distribuiti, perfetti per accogliere una famiglia o chi cerca comfort e funzionalità.

La zona giorno è composta in ambienti separati da una cucina abitabile con accesso diretto al balcone e da un accogliente soggiorno pensato per vivere momenti di relax e convivialità.

La zona notte accoglie una camera matrimoniale spaziosa e ben organizzata, e una cameretta ideale per i più piccoli ma facilmente adattabile anche a studio o stanza per gli ospiti.

Il bagno finestrato si distingue per la sua funzionalità e praticità, dotato sia di vasca che di doccia. La presenza della finestra assicura una naturale aerazione e illuminazione, contribuendo a mantenere l’ambiente sempre fresco e arioso.

Completano la proprietà un comodo sgabuzzino e una cantina al piano seminterrato.


Uno degli aspetti più preziosi di questa proprietà è senza dubbio l’orto privato, uno spazio verde esclusivo dove poter coltivare ortaggi freschi, dedicarsi al giardinaggio e trascorrere piacevoli momenti di relax spazio è perfetto anche per organizzare grigliate con amici e familiari, ricavando così importanti momenti di svago.

Non perdere l’occasione di vivere in un appartamento spazioso, funzionale e con un prezioso spazio verde tutto tuo. Contattaci subito per scoprire tutti i dettagli e fissare una visita!

Mostra tutto

Nelle vicinanze

Trasporto pubblico Trasporto pubblico
Bra
Bra
880 m
Bra (stazione FS)
Bra (stazione FS)
850 m
Bra (v. Cuneo/bv. v. Cherasco)
Bra (v. Cuneo/bv. v. Cherasco)
1,5 Km
Ricariche auto elettriche Ricariche auto elettriche
Stazione di Bra | ENELX
880 m
Bra Servizi SRL
1,2 Km
Scuole Scuole
Scuole
490 m
Asilo Nido Comunale
540 m
Scuola Media "Carlo Alberto Dalla Chiesa
790 m
Istituto San Giuseppe
980 m
Istituto Salesiano San Domenico Savio
1,1 Km
Farmacia Farmacia
Farmacia
550 m
Farmacia Bainotti
780 m
Fides
970 m
Farmacia Bianchi
970 m
Farmacia San Rocco
1,1 Km
Ospedali Ospedali
ASL CN2 Consultorio Familiare CUP
600 m
Ospedale Santo Spirito
1,0 Km
Casa di Cura Privata Città di Bra
1,6 Km
Supermercati Supermercati
Mercatò Local
520 m
La Casa del Senzaglutine S.n.c.
1,0 Km
In's Supermercati
1,0 Km
Sapore di Mare
1,4 Km
Lidl
1,5 Km
Negozi Negozi
Panetteria Seghesio
550 m
Rosso Dario
560 m
Pasticceria Zucchero e Fantasia
600 m
Panificio Songia
870 m
Delizie e Sapori S.N.C.
1,0 Km
Bar Bar
Bar 19' Fermata
70 m
Bar Roberto
530 m
Harri's Bar
720 m
Bar Cremeria Il Chiosco
900 m
Il Gelatiere
920 m
Ristoranti Ristoranti
Ristoburger
740 m
Ristorante Il Principe
850 m
Osteria La Pimpinella
880 m
La Boqueria
890 m
Osteria Murivecchi
910 m
Mostra tutto

Caratteristiche

Rif.:
61129994
Piano:
1 di 3 (Piano basso)
Posti auto:
1
Balconi:
2
Camere da letto:
2
Arredamento:
Parziale
Mostra tutto
Prezzo Prezzo
€ 100.000
Rata mutuo Rata mutuo
€ 472 / mese
Spese annue Spese annue
€ 1.600
Proponi il tuo prezzoProponi il tuo prezzo
Immobile valutato con T·Valuta

Classe Energetica

F
F
F
F
F
F
F
F
F
EP globale non rinnovabile:
283.98 kW h/m² anno
EP globale rinnovabile:
0.98 kW h/m² anno
EP invernale del fabbricato:
EP estiva del fabbricato:
Anno di costruzione:
1970
Riscaldamento:
Centralizzato
Tipo impianto:
A radiatori
Tipo alimentazione:
Metano

Ti interessa visionare l'immobile?

Fissa un appuntamento  Fissa un appuntamento

Richiedi informazioni

Clicca su Leggi per aprire l'informativa
* Questi campi sono obbligatori

Calcola il tuo mutuo

Semplice e senza impegno
Anticipo

( % )
Mutuo

( % )

pochi semplici passi

inserisci i tuoi dati
Questionario completato
Grazie per aver richiesto un appuntamento senza impegno con un nostro Consulente del Credito e Assicurativo.

Hai inserito correttamente tutti i dati necessari e a breve riceverai una e-mail con un link da convalidare per inviare i tuoi dati.
Affiliato
Studio Vittorio D.I.
Via Vittorio Emanuele II, 107 12042 Bra (CN)

Il nostro staff


  • Andrea Veglio
    Affiliato

  • Elena Bertolusso
    Collaboratrice

  • Andrea Giordanino
    Responsabile

  • Sonia Mollo
    Coordinatrice
Via Vittorio Emanuele II, 107 12042 Bra (CN)
Zona: Bra-Madonna Dei Fiori-San Michele-San Matteo-Bandito
Mostra su mappa
Orari: Dal lunedì al venerdì 9-12.30 e 15-20. Sabato 9-12.30 e 15-19.
Affiliato
Studio Vittorio D.I.
Via Vittorio Emanuele II, 107 12042 Bra (CN)

2025 Tecnocasa Franchising S.p.A. - P. IVA 08365160152 - Via Monte Bianco 60/A 20089 Rozzano (MI). Ogni agenzia ha un proprio titolare ed è autonoma. Privacy policy | Policy utilizzo | Cookie policy